Nemovitosti
Byt 2+kk v krásném prostředí u řeky Vltavy v Hluboké nad Vltavou
Nabízíme k prodeji družstevní byt 2+kk o výměře 57 m2 s terasou
29 m2 v novém, ojedinělém projektu komunitního seniorního bydlení
v České Republice, v Senior Resortu Hluboká. Projekt je bezbariérový,
určený primárně pro seniory 55+, či pro osoby s potřebou seniorní
péče.
Pokud nyní svůj byt v Resortu Hluboká nevyužijete se službami, můžete
jej pronajmout, či jej využívat bez seniorních služeb jako standartní byt.
Prodáno je již 50% celkového počtu bytů, neváhejte!
Hluboká nad Vltavou – Zámostí je klidné, atraktivní prostředí
s výhledem na řeku Vltavu a hlubocký zámek, s výbornou dostupností
občanské vybavenosti, kulturních a sportovních aktivit.
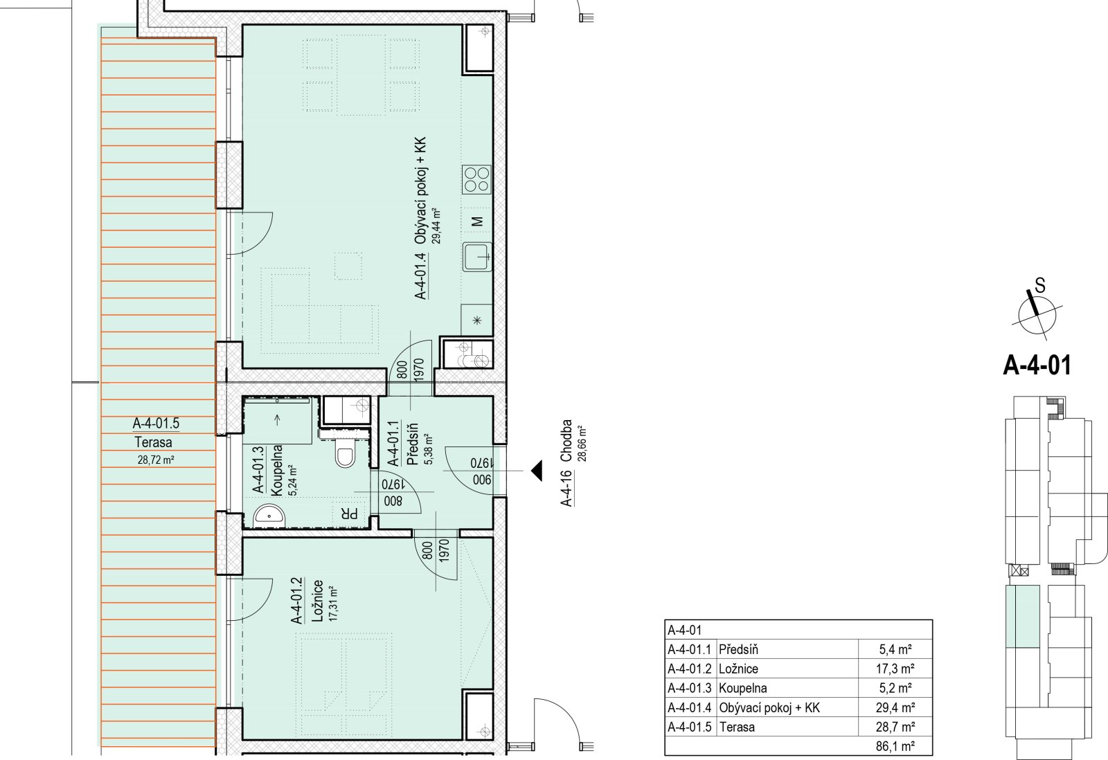
Popis bytové jednotky A-4–01
- Dispozice: 2+kk
- Podlahová plocha: 57,4 m²
- Podlaží: 4. NP
- Orientace: západ s výhledem na řeku
- Terasa : 29 m²
Byt je navržen pro pohodlný a bezpečný život – prostorné místnosti,
kvalitní materiály a maximální důraz na komfort uživatelů.
Bezbariérový přístup – kompletně řešená bezbariérová trasa a vstupy
v celém resortu, včetně vjezdu pro invalidní vozík do prostoru sprchy,
terasy či balkonu, venkovní žaluzie a klimatizace obou místností.
Stav: nyní ve výstavbě, kolaudace 12/2026
_______________________________________
Co Senior Resort Hluboká nabízí
- 185 moderních družstevních bytů ve 4 domech s různými dispozicemi
(1+kk až 3+kk) – všechny bezbariérové.
- Příjemné terasy, balkony, případně zahrádky u přízemních
jednotek.
- Možnost vnitřních a venkovních parkovacích stání.
- Zdravotní servis včetně telefonní/telemedicínské péče a
standardní zdravotní služby na dosah ruky.
- Propojené domy krytými komunikacemi a společenské prostory pro sdílení
volného času.
- Atraktivní okolí s bohatou nabídkou kulturní, sportovní a relaxační
infrastruktury.
________________________________________
Financování a vlastnictví
- Byt je nabízen formou družstevního vlastnictví – dostupná varianta
bez nutnosti řešit klasickou hypotéku a dokládat příjmy. Po podpisu
smlouvy skládá klient 30 % ceny bytu a zbytek se řeší dlouhodobými
měsíčními splátkami družstvu, či jednorázovou splátkou po
kolaudaci – konec roku 2026.
Hledej podobné nemovitosti
Nastartuje s námi Vaší kariéru
Chtěli jste vždy pracovat v oboru nemovitostí a sami nemáte odvahu? Máte chuť stát se součástí dobrého týmu založeného na vzájemné spolupráci a podpoře? Nabízíme práci v sehraném kolektivu i možnost kariérního postupu. Podmínkou je plynulá znalost anglického jazyka slovem i písmem, orientace na trhu nemovitostí a celkový přehled a hlavně – velká chuť učit se nové věci a být jako ryba ve vodě při jednání s lidmi, kteří jsou našimi klienty a pro které se snažíme vytvořit co nejlepší podmínky. Nabídky prosím zasílejte na atkinson@atkinson.cz. Těšíme se na Vás





















