Nemovitosti
Novostavby řadového domu 5+kk - Rudolfov
Krátká
Nabízíme k pronájmu novostavbu rodinného řadového domu o dispozici
5kk, a celkové výměře užitné plochy 139 m2, s předzahradou 59 m2, a
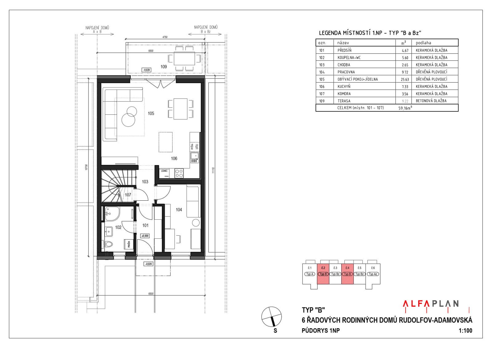
zahradou za domem o výměře 108 m2. Přízemí se skládá z předsíně,
koupelny s WC a sprchovým koutem, chodby, pracovny, obývacího pokoje
s jídelnou a kuchyňským koutem a komory (celková plocha přízemí je
59 m2).
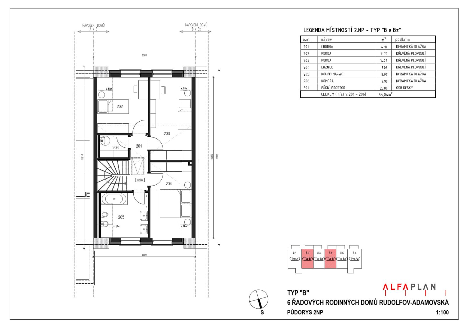
V 1. patře najdete chodbu , 3 ložnice, koupelnu s vanou a WC, a komoru
(celková plocha patra je 55 m2).
Rodinný dům je najímán bez vybavení, pouze s kuchyňskou linkou včetně
spotřebičů.
Prohlídky od 15.3.2026
Nájemné 29.000 Kč/měsíc
záloha na vodu – 1000 Kč/měsíc
plyn + elektřina – přepis na nájemce, předpoklad celkových nákladů na
provoz je 4500/měsíc
Jistota – 2 měsíční nájmy
Rezervace a provize RK – jeden měsíční nájem + DPH
Krátká
Hledej podobné nemovitosti
Nastartuje s námi Vaší kariéru
Chtěli jste vždy pracovat v oboru nemovitostí a sami nemáte odvahu? Máte chuť stát se součástí dobrého týmu založeného na vzájemné spolupráci a podpoře? Nabízíme práci v sehraném kolektivu i možnost kariérního postupu. Podmínkou je plynulá znalost anglického jazyka slovem i písmem, orientace na trhu nemovitostí a celkový přehled a hlavně – velká chuť učit se nové věci a být jako ryba ve vodě při jednání s lidmi, kteří jsou našimi klienty a pro které se snažíme vytvořit co nejlepší podmínky. Nabídky prosím zasílejte na atkinson@atkinson.cz. Těšíme se na Vás























